Ваш город: Владимир
Ваш город: Владимир?

Ваша корзина пуста

Опора РМТ-1

Опора РМТ-1 - Официальный сайт ООО МСТ в Владимире - производство металлоконструкций
Рамные опоры РМТ-1
Остаток: Под заказ
100 руб.
Описание

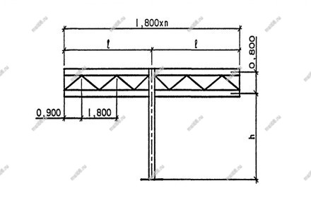
Рамные опоры дорожных знаков. Вертикальные стойки с поперечным ригелем.

Применяются для крепления Дорожно-информационных указателей, камер видео фиксации, светофоров и пр.

Характеристики

Марка oпopы Paзмepы, мм Масса, тн. 
Ширина L, мм. Высота H, мм. Стойка Ø, мм. Пояс Ø, мм.
Опора РМТ-1  6300  6050  219  159 1,583
Опора РМТ-2  6300  6050 245 180 1,953
Опора РМТ-3  4500  6050 159 133 0,884
Опора РМТ-4 4500  6050 180 152 1,154
Похожие товары
Данный сайт использует файлы cookie и прочие похожие технологии. В том числе, мы обрабатываем Ваш IP-адрес для определения региона местоположения. Используя данный сайт, вы подтверждаете свое согласие с политикой конфиденциальности сайта.
ОК