Сваи винтовые
Описание
Винтовые сваи - это металлические стержни с винтами на конце, которые используются для укрепления почвы и создания фундамента. Винтовые сваи устанавливаются в грунт, а затем вкручиваются в землю с помощью специального оборудования.
Винтовые сваи широко применяются в строительстве зданий и сооружений, особенно в условиях сложного ландшафта, где обычные фундаменты не могут быть установлены
ООО "МСТ" производит следующие виды металлических сваи:
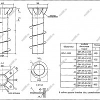
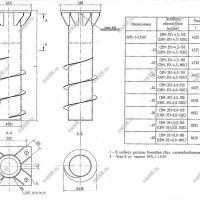
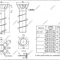
- Винтовые сваи ВСЛ с литым наконечником для талых грунтов с сезонным промерзанием
- Винтовые сваи ВСЛМ для многолетнемёрзлых грунтов
- Винтовые сваи СВС со сварным наконечником
- Сваи металлические забивные.
Применение винтовых свай
Винтовые сваи применяются в области энергетического и нефтегазового строительства, зданий и сооружений, фундаментов опор ЛЭП, трансформаторов, ОРУ, трубопроводов. В строительных целях, от возведения дома или бани до установки опор ЛЭП или опор освещения.
Для установки или монтажа на верх винтовой сваи используются оголовки или ростверки, это зависит от предназначения винтовой сваи и предполагаемых нагрузок.
Диапазон диаметра винтовых свай различный в зависимости от назначения 108 — 425 мм, длина может варьироваться 2 — 11 метров. Производство винтовых свай осуществляется согласно техническим условиям, а также по чертежам заказчиков.
Монтаж винтовых свай
При монтаже винтовых свай могут использоваться ручные машины для завинчивания если это позволяет грунт местности, а так же диаметр винтовой сваи. Для установки свай больших диаметров на помощь приходят специальные установки на колесной базе.
Покрытие винтовых свай
Защитное покрытие винтовых сваи от коррозии выполняют различными способами, битумными мастиками, лакокрасочными материалами такими как эмали и грунтовка ГФ, в том числе применяется метод горячего оцинкования. Толщина оцинкованного покрытия составляет 60 — 150мкм. Срок службы такого защитного покрытия может достигать 25-30 лет эксплуатации. Помимо своего прямого предназначения он придаёт приятный эстетический вид без дополнительных доработок.
Доставка
Доставку металлических винтовых сваи мы осуществляем автотранспортом и жд-транспортом.
В целях вашей экономии малые объёмы продукции отправляем догрузом либо транспортной компанией (ДЛ, ПЭК, Энергия и др.)
Чтобы рассчитать стоимость укажите адрес.
Самовывоз Винтовых свай с производства в Владимире возможен только в рабочее время. Погрузка осуществляется верхним способом.
Для забора груза самостоятельно потребуется подписанная доверенность на водителя либо экспедитора и 100% оплата товара.


